25 St. John Street, Manchester, M3 4DT
£10,000.00
Description
The full corner plot at Manchester’s most prestigious address.
Use Class: Class E
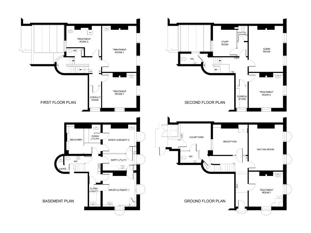
Available at the close of October 2024 is the full building of office accommodation (consisting of four floors -Basement to Second) at 25 St. John Street. Immaculately presented and preserved according to its Grade II listing, the property boasts original features such as the showpiece Raised and fielded wooden panel door, terracotta floor tiles, a stunning balustrade to the central staircase rising through all floors, timber sliding sash windows overlooking St John’s Gardens, and a private courtyard finished with a glass roof. W/C facilities are located on each floor.
Deansgate, from which St John St is directly accessed from, has long been established as the beating heart of Manchester City Centre. Directly adjacent to the building sits St John’s Gardens, one of the City Centre’s last authentic green spaces, which provides passageway through to the quickly-emerging St John’s neighbourhood and Enterprise City, Manchester’s new technological sector. 2-minutes walk in the other direction lies Spinningfields, a metropolis of high-rise skyscrapers which serves as Manchester’s financial and professional centre. 25 St. Access to Manchester’s main line railway stations are all within walking distance and St Peter’s Square Metrolink is less than a 5 minute walk.
The property has been well-maintained by the previous tenant and is ready for immediate occupation. Currently the building falls within Use Class D1, being operated as an aesthetic medical clinic. Other Uses to support businesses such as financial/professional services, office space and studio space are found elsewhere along St. John St and are likely to be supported subject to approvals with Manchester City Council.
On-Street parking is available directly outside the property.
Business Rates and VAT may be applicable.

1 of 36

2 of 36

3 of 36

4 of 36

5 of 36

6 of 36

7 of 36

8 of 36

9 of 36

10 of 36

11 of 36

12 of 36

13 of 36

14 of 36

15 of 36

16 of 36

17 of 36

18 of 36

19 of 36

20 of 36

21 of 36

22 of 36

23 of 36

24 of 36

25 of 36

26 of 36

27 of 36

28 of 36

29 of 36

30 of 36

31 of 36

32 of 36

33 of 36

34 of 36

35 of 36



